CASSETTE
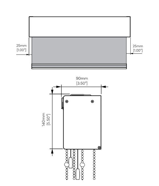
V-90 CASSETTE
The V-90 Twin Cassette accomodates two roller shades of different opacities inside an enclosed and fully assembled aluminum cassette. The shading system ships as a complete unit for easy installation. Motors can be positioned for RR, LL, or LR control. Chains can be positioned for RR or RL control.
COLOURS
Related Products
List of Services
Elite Pro Shade Systems
FAQ
Frequently Asked Questions
What options to you have for open‑roll systems?
Elite Pro’s open-roll minimalist systems are available in four bracket sizes for single shades and two for twin. Sizes differ by window scale; alternative options are available for hardware that supports larger windows
Are the cassette shading systems easy to install?
Yes most cassette systems utilize snap-in mounting brackets and a curved aluminum cassette with a matching fabric insert and are available in two sizes for flexible installation.
Can Elite Pro’s fascias be recessed into ceilings?
Yes, the Fascias can be mounted flush or recessed in ceiling pockets, and its removable covers simplify maintenance.
What benefits do Elite Pro systems offer in commercial environments?
Elite Pro offers heavy-duty modern systems designed for clean integration with commercial glazing and mullions, with cassette or fascia versions for fast install or custom configuration .
How thin is your slimmest cassette and what is its mounting depth?
Our most slim cassette is only 2″ deep, ideal for tight window pockets, and ships as a pre-assembled kit painted to integrate with modern window systems




















